Overview
- Updated On:
- noviembre 13, 2025
- 6 Dormitorios
- 6 Baños
Bienvenido a Son Mesquida - aquí le espera un terreno edificable único y totalmente vallado. La licencia para el proyecto básico ya ha sido concedida, por lo que el cliente tiene la oportunidad de modificar la casa según sus deseos y ¡puede empezar a construir directamente!
¡Bienvenido a su nuevo hogar en Son Mesquida!
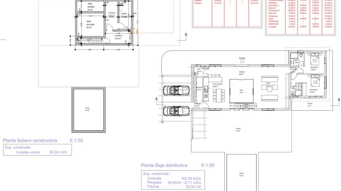
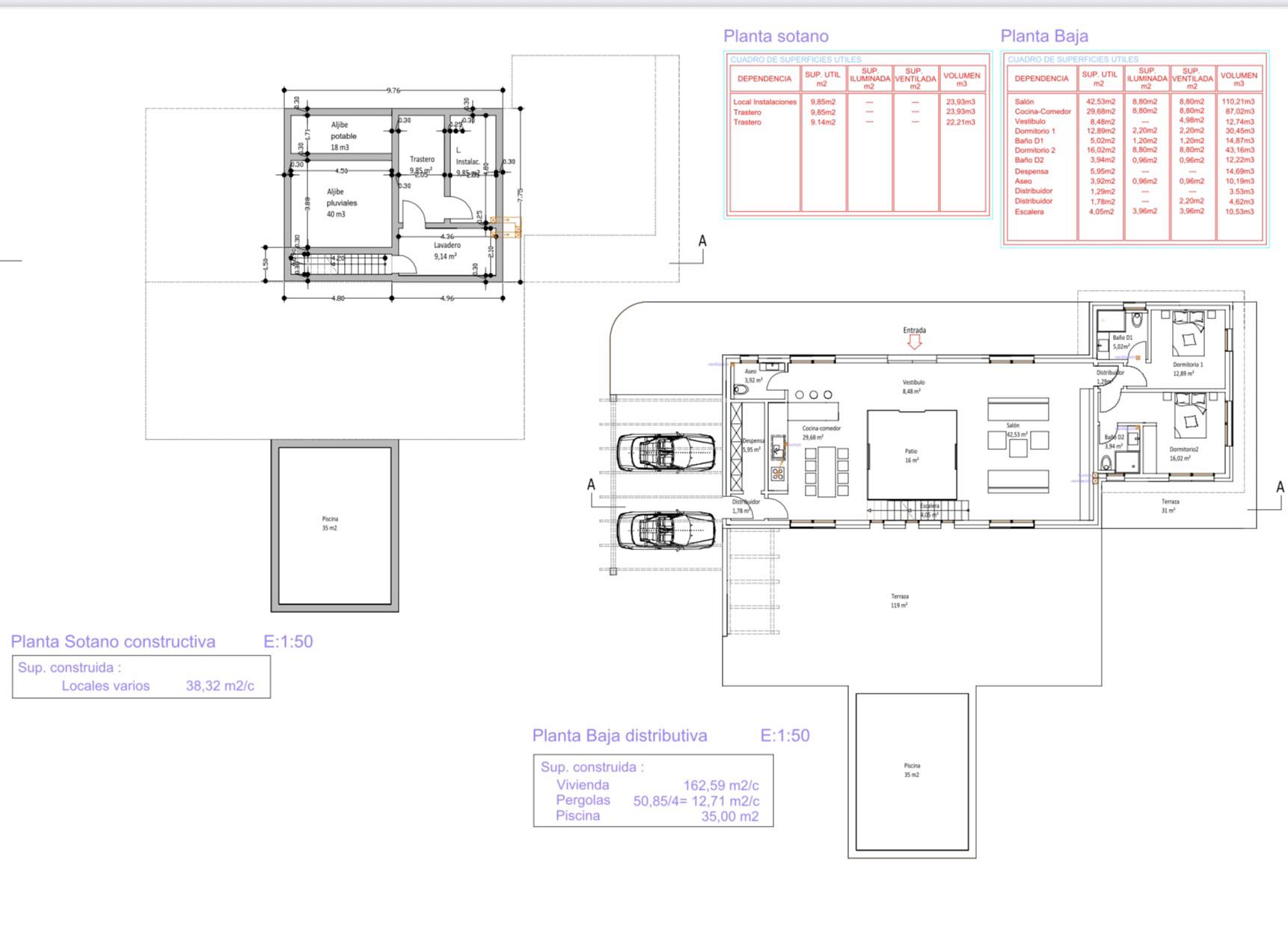
En el proyecto básico se ha presentado una finca de 5 dormitorios con baños en suite, por lo que aún puede diseñar la distribución de las habitaciones. Los planos también incluyen un amplio salón-comedor con cocina americana.
La característica especial de esta casa de campo:
El salón está separado del comedor por un patio acristalado, que invita a relajarse en un ambiente acogedor bajo un olivo.
Todas las habitaciones de la planta baja tienen acceso a una terraza envolvente.
También encontrará los dos primeros dormitorios con baños en suite, un aseo y un práctico trastero. La cochera contigua ofrece espacio para dos coches.
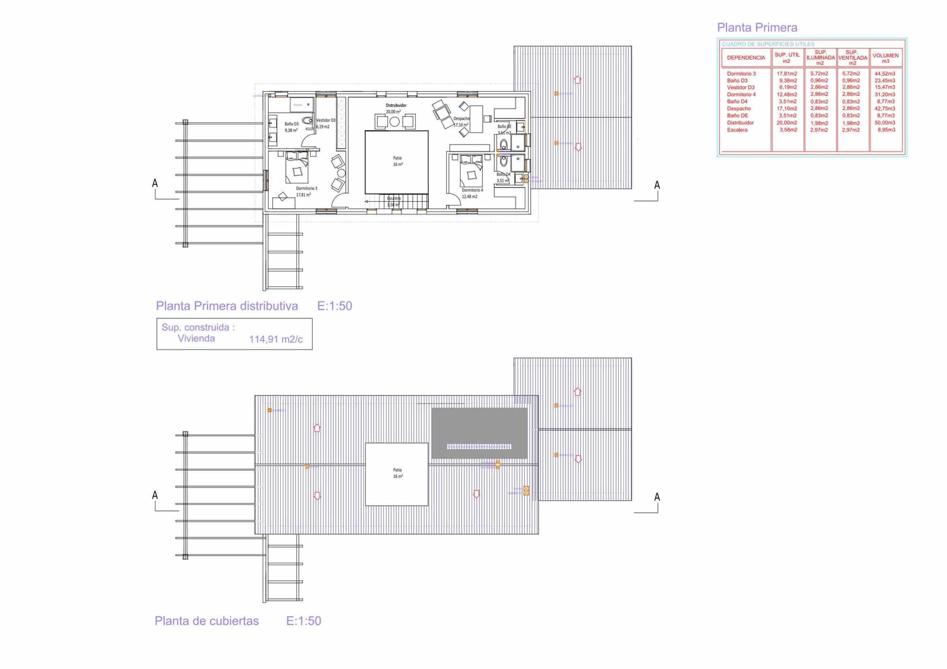
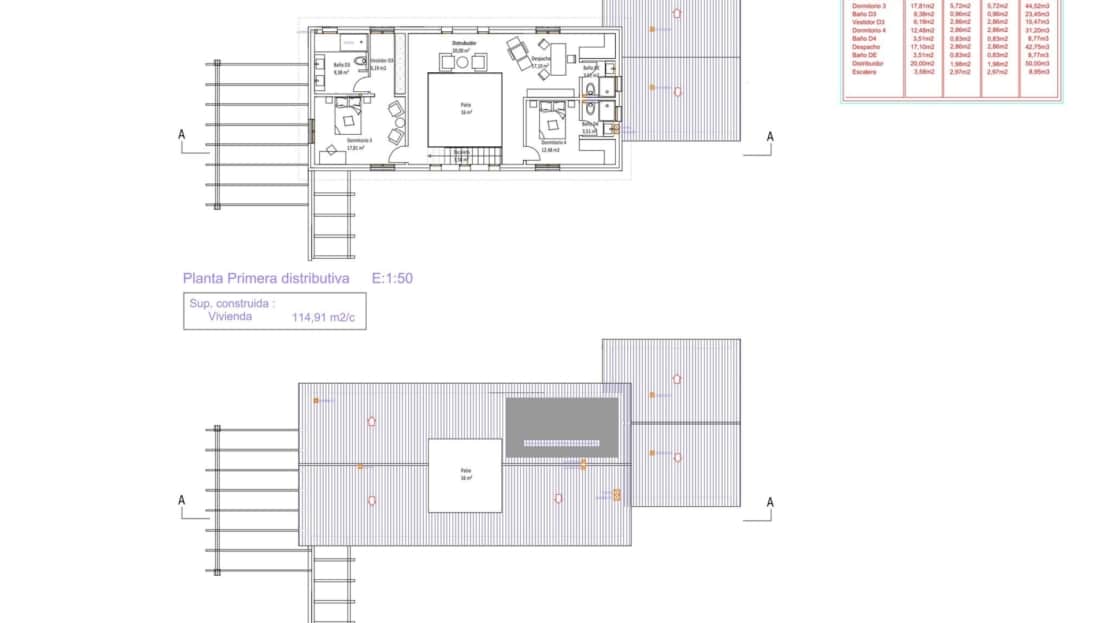
Una escalera central conduce a la planta superior con 3 dormitorios con baños en suite y una oficina que podría ser utilizada como otro dormitorio.
El dormitorio principal tiene un gran cuarto de baño con vistas a la Sierra de Tramuntana.
Todos los dormitorios tienen armarios empotrados.
La sala técnica se encuentra en el sótano.
Con vistas a la amplia piscina orientada al suroeste, disfrutará al máximo de cada puesta de sol.
Datos de un vistazo:
- Precio de compra: 449.000 EUR
- Superficie parcela: aprox. 27.537 m2
- Superficie construida: aprox. 462 m2
- Superficie habitable: aprox. 239 m2
- Número de habitaciones: 7
- Número de oficinas 1
- Número de dormitorios 5
- Número de baños 5
- Número de WC separados 1
- Construcción sólida
- Total plantas: 3
- Trastero y bodega
- Terraza
- Piscina
- Cochera para 2 vehículos
- ¡Licencia para el pozo está disponible!
- ¡Sin compromiso de arquitecto!







