UNDER CONSTRUCTION! Renovated apartment in Santa Catalina, in a quiet location, with terrace

Advanced Search

UNDER CONSTRUCTION! Renovated apartment in Santa Catalina, in a quiet location, with terrace

695.000 €
Favorite
Your search results
5282 Wohnung in Santa Catalina 5 5282 Wohnung in Santa Catalina 17 5282 Wohnung in Santa Catalina 10 5282 Wohnung in Santa Catalina 8 5282 Wohnung in Santa Catalina 12 5282 Wohnung in Santa Catalina 2 5282 Wohnung in Santa Catalina 18 5282 Wohnung in Santa Catalina 15 5282 Wohnung in Santa Catalina 1 5282 Wohnung in Santa Catalina 9 5282 Wohnung in Santa Catalina 3

Overview

  • Updated On:
  • December 11, 2025
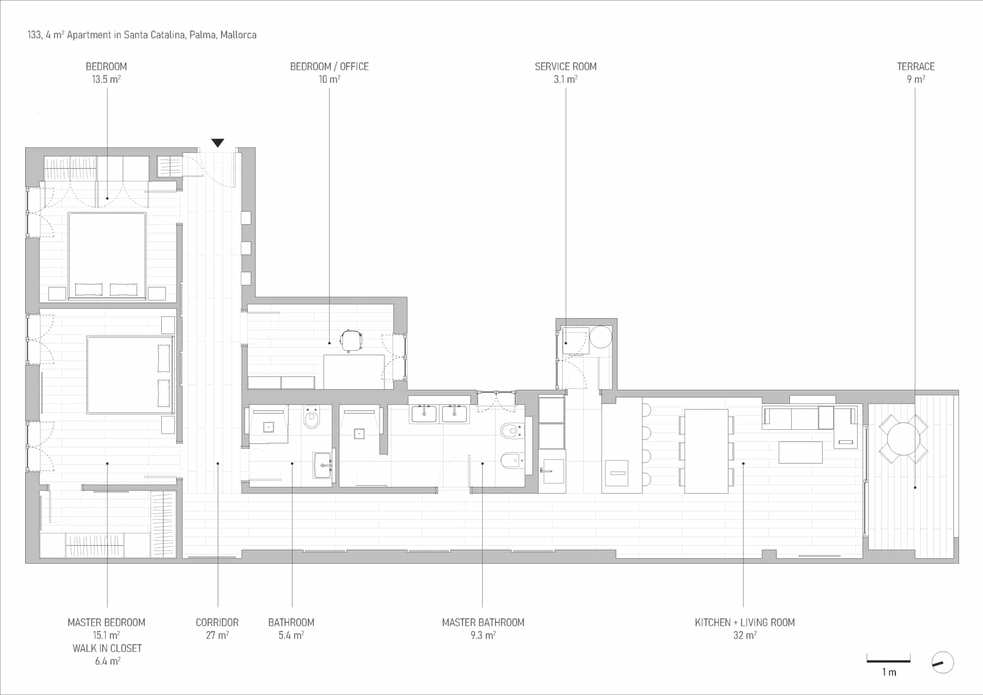
  • 3 Bedrooms
  • 2 Bathrooms
  • 132 m2
  • Year Built: 1880

This apartment is located in the vibrant Santa Catalina district, just a few steps away from trendy cafés, renowned restaurants, boutiques and the famous Santa Catalina market.

The apartment is located on the third floor of a well-kept building and is currently being completely renovated so that it will soon be ready to move into.

The interior of the apartment is designed with a refined aesthetic that combines Scandinavian minimalism with Mediterranean charm. It features a spacious hallway, three elegant bedrooms, two high-quality bathrooms and a bright, open-plan living and dining area. The sleek white kitchen, equipped with high-quality appliances, a gas stove and a central cooking island, offers a stylish and functional culinary space.

A private terrace with Mediterranean plants offers a peaceful outdoor retreat, perfect for soaking up the sun or hosting guests.

This exceptional property offers a unique opportunity to enjoy modern comforts, quality finishes and the pulse of Palma’s city life all in one place. A rare find for those looking for a stylish and well-connected home in the heart of the city.

State/County:
Zip: 07013
Country: Spain
Open In Google Maps
Property Id : 1221702
Price: 695.000 €
Property Size: 132 m2
Rooms: 4
Bedrooms: 3
Bathrooms: 2
Lage: Santa Catalina is a district of Palma that lies to the west of the old town. It benefits from its proximity to the harbor promenade and the city beach. Santa Catalina was the typical harbor district. Sailors, fishermen and shipbuilders lived here. The name Santa Catalina, which comes from the patron saint of sailors, is also a reminder of the district's history. The district has become increasingly popular, especially in recent years. A variety of restaurants and bars of different styles and orientations attract many people to the streets of the port city every evening. The offer is international and exquisite. During the day, locals and tourists enjoy the colorful hustle and bustle in the famous Santa Catalina market hall, where all kinds of fresh products are offered for sale.
Ausstattung: - Smart Home System - 5 minutes from the beach - Possibility to rent a parking space in the neighboring building - Designer lamps - Towel heating in the bathrooms - Decorative wine storage in the kitchen - Floors laid with Austrian oak - Carrara marble window sills - Luxury fittings from Geberit, Villeroy & Boch, Herzbach and many more
Objekt ID: 5282
Konstruierte Fläche: 140
Suchpreis: 695000.00
Other Features
Air Condition
Cable/Satellite TV
Open Kitchen
Panoramic View
Pantry Kitchen
Passenger Elevator
ready-furnished
Storeroom
Washing/Drying Room
Floor Plan Project Colubi

Contact Me

Compare Listings

Andreas Dinges
we listen
Help